Pendeltür
Die Pendeltüren werden in unserem Werk in Kägiswil (Obwalden) hergestellt und sind die praktische, anwendungsgerechte Lösung im Aussen- und Innenbereich von Industrie- und Gewerbebauten, Molkereien, Ställen, Ökonomiegebäuden, Kellern, Lagerräumen, Nass- und Abstellräumen etc.
- Technische Daten
- Produktinformationen
- Lieferung
- Montage
- Downloads
- Stärke der Türfüllung36 mm
- Wärmedurchgangskoeffizient W/m2.KAlustucco 1.20 / Holz 1.80
Türfüllungen
Alustucco
Die Corapan-Verbundplatte besteht aus einem Isolierkern mit geschlossener Zellenstruktur «Coracel». Das Türblatt ist beidseitig mit einem Aluminium-Blech belegt. Dieser Aufbau macht die Türe extrem witterungsbeständig. Dank dem patentierten Schubausgleich bleibt die Türe verzugsfrei. Das Türblatt ist mit folgenden Oberflächen erhältlich: braun RAL 8011, grau RAL 7000 oder in beliebiger RAL-Farbe lackiert.
Holz
Das Türblatt wird aus einheimischem Fichtenholz mit einem Isolationskern mehrfach verleimt. Die Oberfläche ist zur bauseitigen Nachbehandlung bereits vorgrundiert. Innen mit einer abwaschbaren Platte belegt.
Kunststoff
Der lsolationskern ist innen und aussen mit einer 3 mm starken, grauen oder weissen Kunststoffplatte belegt. Geeignet NUR im Innenbereich.
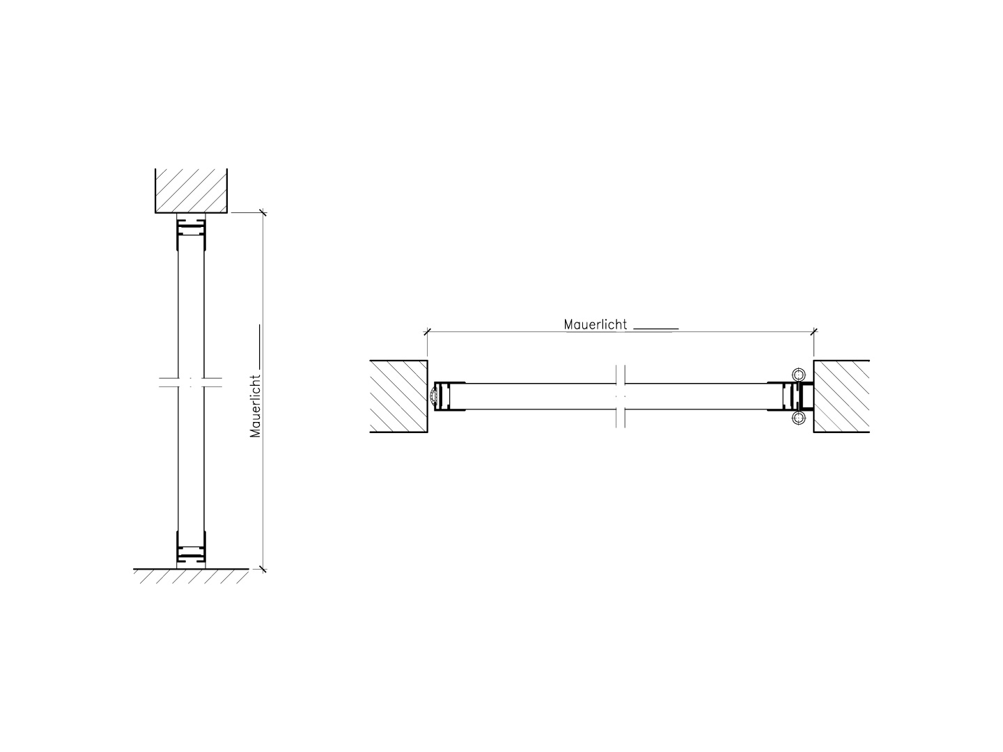
Anschlagrahmen
Umlaufender Alu-Aufschraubrahmen mit Türschwelle zum Eingiessen. Aluminiumprofile aus Anticorodal 90 × 40 mm. Standard pro Seite 5 mm im Licht.
Türblatt-Rahmenprofil
Aluminium-Umfassungprofil aus Anticorodal mit Falz. Ecken in Gehrung geschnitten und mit verdeckten Verbindungselementen sauber zusammengebaut.
Beschläge Flügeltüren
Rostfreie Türbänder und Bolzen, nicht rostendes Einsteckschloss mit Zifferschlüssel oder vorgerüstet für Sicherheitszylinder, Aluminium-Drückergarnitur und Langschilder.
Doppelwirkende Pendelbeschläge aus rostfreiem Stahl.
Lieferung ab Kägiswil
Lieferfrist ca. 3 Wochen
Transport/Ablad
– Liefer- oder Lastwagen
– Der Ablad ist bauseits, d.h. geeignetes Hebezeug muss vor Ort bereitgestellt werden
– Optional Handablad mit bauseitiger Mithilfe
Verpackung
Auf Transportbock
Einfache Selbstmontage möglich.